Γραμμικό Σχέδιο (Γ Λυκείου Επιλογής) - Βιβλίο Μαθητή
Οργάνωση - παρουσίαση πίνακα - Γενικά Πρακτικές οδηγίες Επιστροφή στην αρχική σελίδα του μαθήματος
ΟΡΓΑΝΩΣΗ - ΠΑΡΟΥΣΙΑΣΗ ΠΙΝΑΚΑ

3.2 Οργάνωση πίνακα

Ο τρόπος που τοποθετούμε - συνθέτουμε τα διάφορα στοιχεία του πίνακα πάνω στο χαρτί καθορίζεται από δύο βασικούς κανόνες:

 

1. Την ορθολογική οργάνωση του πίνακα, που έχει ως στόχο την ευκολία στη σχεδίαση, στον έλεγχο και στην ανάγνωση των σχεδίων για την παροχή πληροφοριών.

2. Την οργάνωση του πίνακα με στόχο ένα αισθητικά άρτιο αποτέλεσμα.

 

Το μέγεθος, το σχήμα και οι αναλογίες του πίνακα, δηλαδή το πόσο μεγάλος είναι, αν είναι τετράγωνος ή ορθογώνιος, αν διαβάζεται όρθιος ή πλαγιαστός, σε συνδυασμό με το περιεχόμενο του - πλήθος και είδος στοιχείων - υποδεικνύουν κατ'αρχήν τον τρόπο σύνθεσης των διάφορων στοιχείων του.

Στο γραμμικό σχέδιο, όπως ήδη έχουμε αναφέρει, χρησιμοποιούμε κυρίως πίνακες διαστάσεων 35 x 50 εκ. ή 50 x 70 εκ., που είναι μεγέθη των χαρτιών του εμπορίου.

3.2.1 Ορθολογική οργάνωση πίνακα

Η σχεδιαστική περιγραφή ενός θέματος - κτίριο, εξάρτημα, έπιπλο, διακοσμητικό μοτίβο - γίνεται με κατόψεις, τομές, όψεις αλλά και με άλλα σχέδια όπως αξονομετρικά και προοπτικά στην ίδια ή διαφορετική κλίμακα. Λεπτομερέστερη αναφορά γι'αυτά τα θέματα γίνεται σε επόμενα κεφάλαια του βιβλίου. Μιλώντας για ορθολογική οργάνωση, αναφερόμαστε κυρίως στην περίπτωση όπου σ'έναν πίνακα τοποθετούμε περισσότερα από ένα σχέδια ίδιας κλίμακας, και στη μεταξύ τους οριζόντια ή κατακόρυφη σχέση.

Η ακρίβεια στη σχεδίαση, κατά κύριο λόγο, αλλά και η σχεδιαστική ταχύτητα εξυπηρετούνται από τη συσχέτιση των σχεδίων μεταξύ τους, περιορίζοντας τα μετρήματα και δίνοντας τη δυνατότητα μεταφοράς διαστάσεων από το ένα σχέδιο στο άλλο. Συσχετίζοντας τα σχέδια μεταξύ τους, επιτυγχάνουμε επίσης ευκολότερο και ταχύτερο έλεγχο των σχεδίων στη διάρκεια της σχεδίασης αλλά και ευκολία και ταχύτητα στην ανάγνωση και κατανόησή τους.

 

εικόνα
εικ. 3.3

Σχεδιάζοντας δύο όψεις ή μια όψη και μια τομή τη μια δίπλα στην άλλη, μεταφέρουμε με τον παραλληλογράφο ή με το τρίγωνο τα κοινά ύψη από το ένα σχέδιο στο άλλο (εικ. 3.3).

 

εικόνα
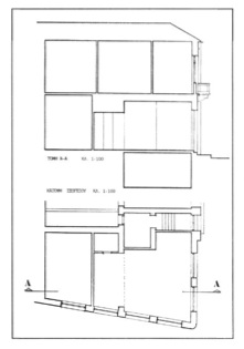
εικ. 3.4

Τοποθετώντας την κάτοψη κάτω και την αντίστοιχη τομή ή όψη πάνω. καθορίζουμε τις οριζόντιες διαστάσεις της τομής ή της όψης από την κάτοψη με παράλληλη μεταφορά (εικ. 3.4) με το τρίγωνο ή με τον παραλληλογράφο.

Οι τίτλοι των επιμέρους σχεδίων σχεδιάζονται κοντά στα σχέδια στα οποία αναφέρονται, συνήθως κάτω αριστερά ή κάτω δεξιά.

 

3.2.2 Αισθητική οργάνωση πίνακα

Μέχρι τώρα μας απασχόλησε η σχέση των σχεδίων ενός πίνακα (πάνω-κάτω, δεξιά-αριστερά). Οι μεταξύ τους αποστάσεις, οι αποστάσεις από τα όρια του πίνακα, η τοποθέτηση των τίτλων - γενικών και επιμέρους - οι ακριβείς σχέσεις, δηλαδή, ανάμεσα στα στοιχεία του πίνακα συμβάλλουν στην αρμονική εικόνα που ο πίνακας παρουσιάζει, συμπληρώνοντας τις ορθολογικές παραμέτρους οργάνωσής του.

 

Με δύο κυρίως τρόπους μπορούμε να πετύχουμε ένα αρμονικό αποτέλεσμα στην εικόνα του πίνακα:

α. Με τη συμμετρική σύνθεση των στοιχείων του.

β. Με τη μη συμμετρική αλλά ισόρροπη τοποθέτηση μέσα στο χαρτί σχεδίασης.

 

εικόνα
εικ. 3.5

α. Συμμετρική σύνθεση

Στην περίπτωση που ο πίνακας αποτελείται από λίγα σχέδια, είναι εύκολο να τον οργανώσουμε συμμετρικά. Δηλαδή αναγνωρίζουμε τον άξονα συμμετρίας του πίνακα και οργανώνουμε τα σχέδια, τους τίτλους, την κλίμακα και τις άλλες πληροφορίες με βάση αυτόν (εικ. 3.5).

 

β. Ισόρροπη τοποθέτηση

Συνθέτουμε ένα ή περισσότερα σχέδια, τους τίτλους του θέματος, την ένδειξη της κλίμακας, προσέχοντας τις μεταξύ τους αποστάσεις και τις αποστάσεις από τα άκρα του πίνακα, καθώς και τα εμβαδά λευκού χαρτιού που μένουν ανάμεσά τους. Ελέγχουμε, δηλαδή, τη σχέση που δημιουργείται ανάμεσα στα στοιχεία του πίνακα και στην επιφάνεια που τα περιβάλλει (εικ. 3.6).

εικ. 3.6

εικόνα